Používame cookies

Súbory cookie a ďalšie technológie sledovania používame na zlepšenie vášho zážitku z prehliadania našich webových stránok, na to, aby sme vám zobrazovali prispôsobený obsah a cielené reklamy, na analýzu návštevnosti našich webových stránok a na pochopenie toho, odkiaľ naši návštevníci prichádzajú. Viac info

Chatky pod Hoľou – moderné bývanie v srdci Oravy

Popis nehnuteľnosti

Zdieľať na Facebooku

Chatky pod Hoľou – moderné bývanie v objatí oravskej prírody

V projekte Chatky pod Hoľou sa spája moderný dizajn, funkčnosť a atmosféra horského pokoja. Tri trojpodlažné chaty vyrastú v krásnej lokalite pod Kubínskou Hoľou, v katastri Beňovej Lehoty (Dolný Kubín).

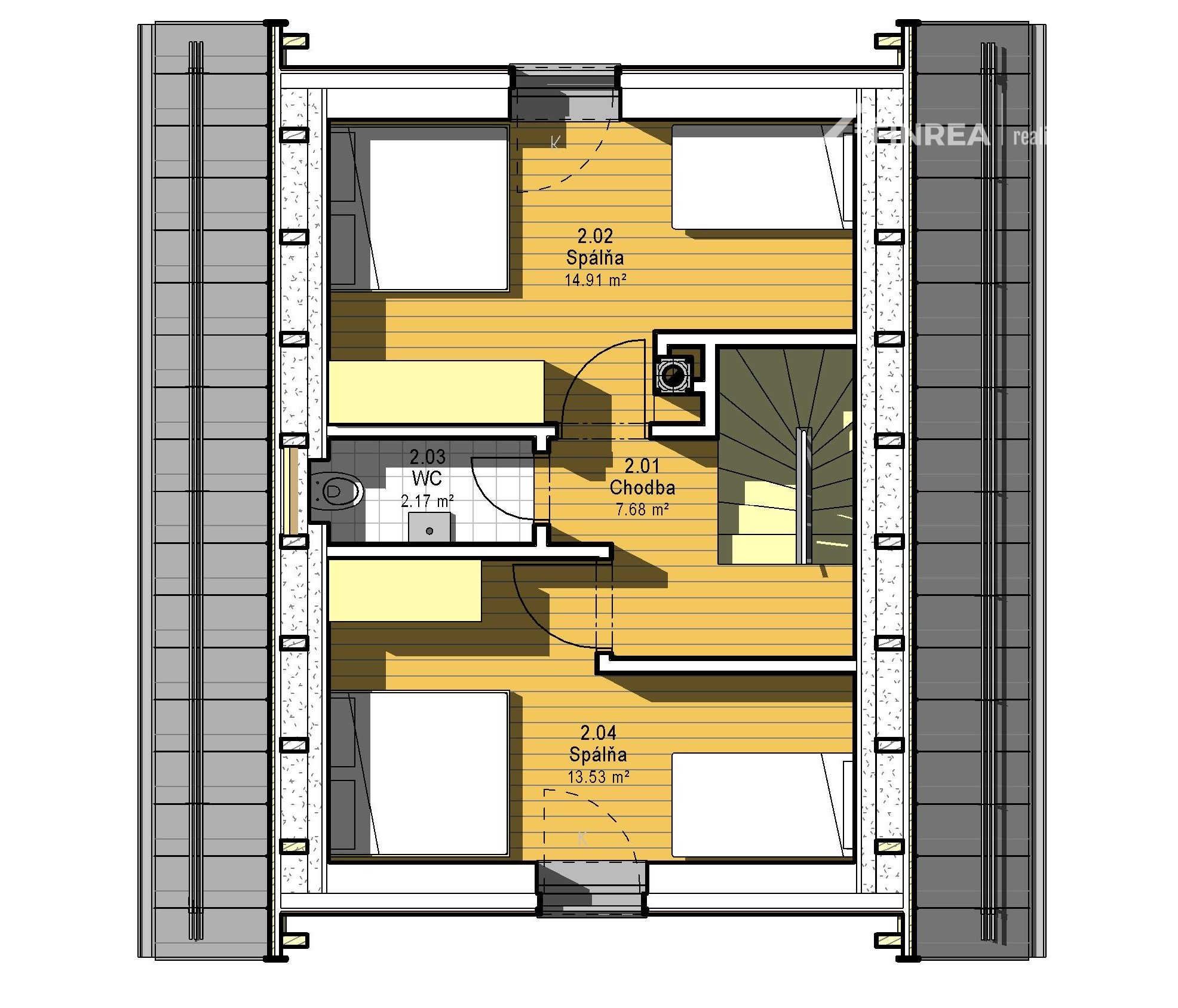
Každá chata s úžitkovou plochou 99 m² je premyslene rozdelená do troch úrovní, aby poskytla maximálny komfort pre oddych aj trvalé bývanie.

Dispozícia a vybavenie

Suterén: lyžiareň, sklad a technické zázemie.
Prízemie: vstupná predsieň, kúpeľňa s WC, priestranná obývacia izba prepojená s kuchyňou a výstupom na terasu s panoramatickým výhľadom.
Podkrovie: dve samostatné izby, chodba a samostatné WC.

Komfort a prepojenie s prírodou

Chaty budú napojené na mestskú vodu, elektrinu a novovybudovanú kanalizáciu.
Využité budú kvalitné materiály, ktoré zabezpečia dlhú životnosť a nízke prevádzkové náklady.

Lokalita a benefity

Projekt sa nachádza len pár minút od strediska SKI PARK Kubínska Hoľa.
Miesto ponúka nádherné výhľady, súkromie a celoročné možnosti aktívneho oddychu – lyžovanie, turistika, cykloturistika, wellness a množstvo atrakcií Oravy.

Výstavba 2025 – 2026

Pozemky 454 – 506 m²
 Výnimočná príležitosť na rekreačné bývanie alebo investíciu do krátkodobého prenájmu

Chatky pod Hoľou – moderné chaty v srdci Oravy, kde domov vonia drevom a ticho má svoju hodnotu.
Ak chcete svoju Chatu na Kubínskej Holi, tak nás kontaktujte: 0903 657 992 a www.chatkypodholou.sk

https://youtu.be/1zfRmIfgrqQ

 

FINREA│Realitná kancelária je členom Realitnej únie SR a riadi sa jej Realitným kódexom. Uvedená cena zahŕňa odmenu realitnej kancelárie, právny servis, a bezplatnú pomoc s vybavením financovania prostredníctvom hypotéky. Upozornenie: Popis nehnuteľnosti - text alebo časť textu, fotodokumentácia a video sú majetkom a autorským dielom spoločnosti FINREA s.r.o. a ich použitie je spoplatnené podľa cenníku uvedeného na www.finrea.sk. Pri viacerých záujemcoch o nehnuteľnosť si majiteľ vyhradzuje právo vybrať záujemcu s najvýhodnejšou ponukou.

Vlastnosti

Status:
aktívne
Vlastníctvo:
osobné
Typ zeme:
svahovitá
Úžitková plocha:
99 m2
Podlahová plocha:
99 m2
Stav:
Vo výstavbe
Počet izieb:
3
Typ budovy:
zmiešané
Typ výbavy:
čiastočne vybavený
Terasa:
áno
Sklad:
áno
Rok výstavby:
2025
Rok kolaudácie:
2026
Počet poschodí od prízemia vyššie:
3
Celková plocha:
99 m2
Orientácia:
juhozápad
Inžinierske siete:
áno
Voda:
áno
Elektrika:
áno
Kanalizácia:
áno
Voda - na pozemku:
áno
Elektrika - na pozemku:
áno
Kanalizácia - na pozemku - čistička odpadových vôd:
áno
Vykurovanie - podlahové:
áno

Hypotekárna kalkulačka

208 000 €
Ulica: Beňovolehotská
Mestská časť: Beňova Lehota
Obec: Dolný Kubín
Okres: Dolný Kubín
Kraj: Žilinský kraj
Druh: Domy
Typ: Predaj
Typ domu: Chata

Martin Mračko

  • Slovensky
  • Česky

Radi Vám poradíme