Používame cookies

Súbory cookie a ďalšie technológie sledovania používame na zlepšenie vášho zážitku z prehliadania našich webových stránok, na to, aby sme vám zobrazovali prispôsobený obsah a cielené reklamy, na analýzu návštevnosti našich webových stránok a na pochopenie toho, odkiaľ naši návštevníci prichádzajú. Viac info

FINREA│ PRENÁJOM KANCELÁRSKYCH PRIESTOROV V CENTRE MESTA – THURZOVA ULICA, MARTIN

Popis nehnuteľnosti

Zdieľať na Facebooku

Ponúkame vo výhradnom zastúpení na prenájom atraktívne kancelárske priestory v historickej budove na prestížnej adrese Thurzova ulica – priamo v centre mesta Martin.

Budova s bohatou históriou (1926 – 1938) prešla postupnou rekonštrukciou, vďaka ktorej spája jedinečný charakter architektúry s moderným komfortom.

 

Výhody lokality

- výborná dostupnosť priamo v centre mesta

- kompletná občianska vybavenosť v pešej dostupnosti

- reprezentatívna adresa pre vaše podnikanie

- dobrá dostupnosť pre klientov aj zamestnancov

 

Výhody priestorov

- rôzne typy kancelárií – od samostatných miestností až po väčšie celky

- možnosť flexibilného rozdelenia alebo spojenia priestorov

- upratovanie zahrnuté v cene služieb

- energie a služby v cene nájmu (podľa typu priestoru)

- niektoré priestory so samostatným vstupom a vlastným sociálnym zariadením

- možnosť prenájmu väčších celkov so zľavou

 

Reprezentatívne priestory a vybavenie

- veľká zasadacia miestnosť po kompletnej rekonštrukcii

- moderná audiovizuálna technika (projektor, UHD obrazovky, ozvučenie)

- bezdrôtové pripojenie na internet

- variabilné osvetlenie a plne zatemniteľný priestor

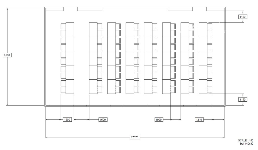
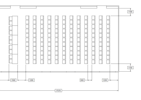
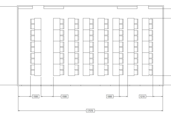
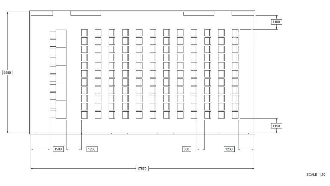
- kapacita až 142 osôb – ideálne na školenia, konferencie a eventy

- menšia zasadacia miestnosť pre cca 25 osôb

 

Voľné priestory: 

Kancelária 14,5m2

Kancelária 17,68m2 + Vstupná chodba s umývadlom 9,22

Kandelária 29,22 m2

 

Kancelárie so samostatným vstupom:

Kancelária 23,22m2

Kancelária 23,00m2

Chodba 3,33

Sociálne zariadenie 6,32m2

 

Veľká zasadacia miestnosť 168,32m2

Malá zasadacia miestnosť 

 

 

Ďalšie benefity

- možnosť cateringu priamo v budove

- kuchyňa a jedáleň k dispozícii

- historické priestory s moderným štandardom

- príjemné pracovné prostredie

 

Cena prenájmu: od cca 10,61 € bez DPH / m2 / mesiac (v závislosti od typu a veľkosti priestoru)

V prípade záujmu o obhliadku alebo viac informácií ma neváhajte kontaktovať.

Vlastnosti

Status:
aktívne
Vlastníctvo:
iné
Úžitková plocha:
23 m2
Zastavaná plocha:
113 m2
Stav:
čiastočne prerobený
Celková plocha:
113 m2
10,61 €/m2/mesiac
Ulica: Thurzova
Obec: Martin
Okres: Martin
Kraj: Žilinský kraj
Druh: Objekty
Typ: Prenájom
Typ objektu: Kancelárie

Ľubomír Pĺž

  • Slovensky
  • Česky

Radi Vám poradíme