Používame cookies

Súbory cookie a ďalšie technológie sledovania používame na zlepšenie vášho zážitku z prehliadania našich webových stránok, na to, aby sme vám zobrazovali prispôsobený obsah a cielené reklamy, na analýzu návštevnosti našich webových stránok a na pochopenie toho, odkiaľ naši návštevníci prichádzajú. Viac info

FINREA│Predaj rodinný dom na pozemku 1602 m² - Pov. Bystrica

  • Exkluzívna ponuka

Popis nehnuteľnosti

Zdieľať na Facebooku

Ponúkame na predaj priestranný rodinný dom nachádzajúci sa v pokojnej časti mesta Považská Bystrica, na ulici Šoltésová.
Dom sa nachádza v zástavbe rodinných domov, v lokalite s dostatkom zelene a dobrým prístupom do centra mesta.

Základné informácie

Počet podlaží: 2 (1 nadzemné + 1 podzemné)
Zastavaná plocha: 106 m²
Pozemok: 1602 m²
Rok výstavby: 1977
Stav: Pôvodný, udržiavaný
Konštrukcia: Tehlová
Inžinierske siete: Elektrina, plyn, voda, kanalizácia

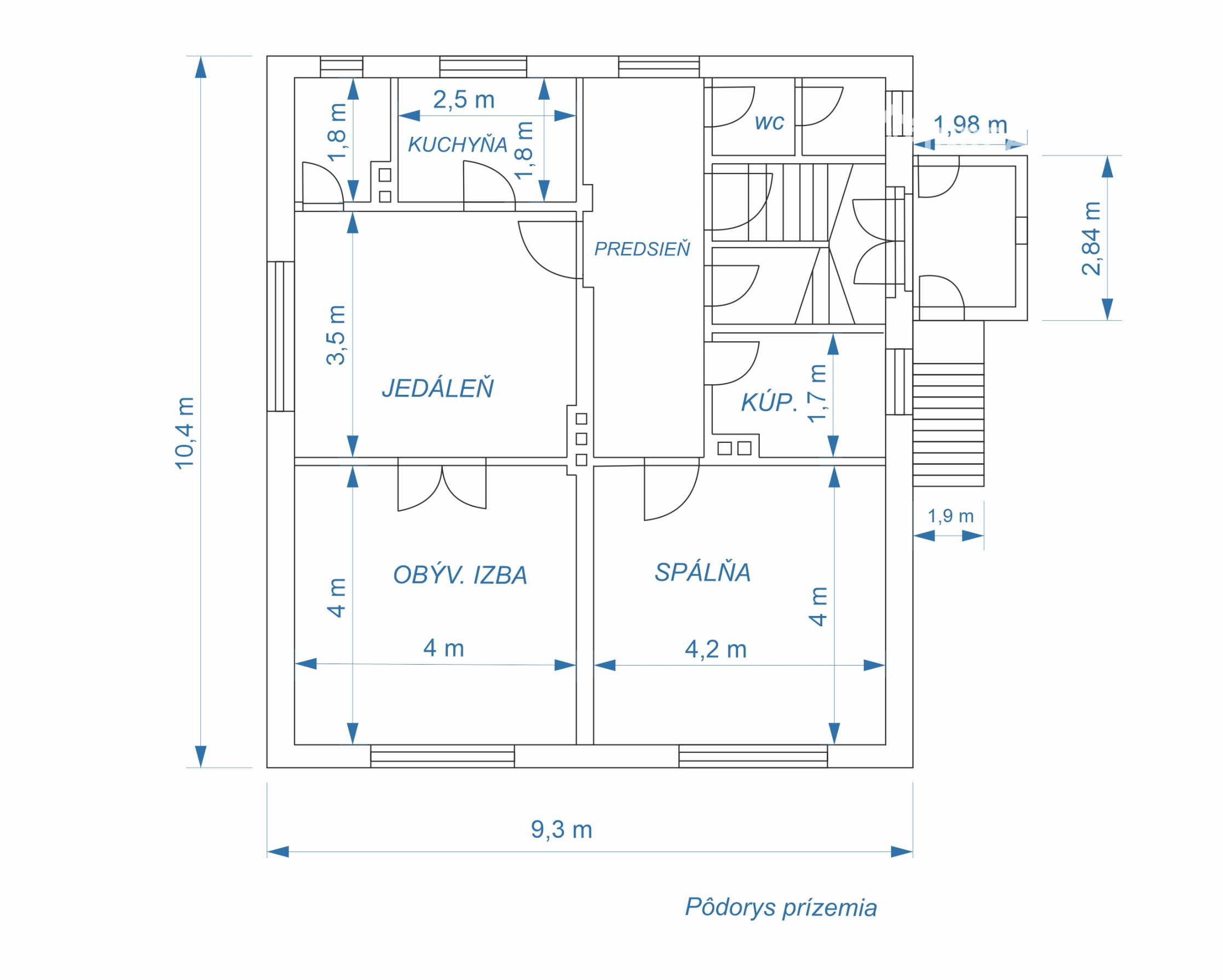
Dispozícia

Suterén:

- spálňa
- obývacia kuchyňa
- práčovňa
- kúpeľňa
- predsieň
- kotolňa
- miestnosť na uhlie
- miestnosť na uskladnenie zeleniny

Prízemie:

- spálňa
- obývacia izba
- jedáleň
- kuchyňa
- špajza
- predsieň
- kúpeľňa
- samostatné WC

Dom je celý podpivničený a ponúka možnosť rekonštrukcie podľa vlastných predstáv – vhodný pre viacčlennú rodinu alebo ako dvojgeneračné bývanie.

Technický stav

Dom je murovaný z pálenej tehly, strecha pôvodná, zachovalá.
Okná sú drevené dvojité, podlahy tvoria PVC a parkety.
Vykurovanie je ústredné – kotol na zemný plyn.
Na pozemku sú všetky inžinierske siete.

Pozemok

Pozemok má výmeru 1602 m², pričom pri dome je mierne svahovitý a v zadnej časti prechádza do svahu.
Vďaka veľkej výmere je možné využitie na záhradníčenie, relaxačnú zónu alebo prístavbu.
Záhrada ponúka dostatok súkromia a možnosti na úpravu podľa potrieb nového majiteľa.

Lokalita

Ulica Šoltésová patrí medzi pokojné a tiché časti Považskej Bystrice.
V blízkosti sa nachádza zastávka MHD, obchody, materská a základná škola, ako aj zdravotnícke zariadenia.
Centrum mesta je rýchlo dostupné autom aj pešo.
Okolie ponúka možnosti pre turistiku, cykloturistiku a oddych v prírode – len niekoľko minút od domu sa začínajú chodníky do Strážovských vrchov a Javorníkov.

Výhody nehnuteľnosti

- pokojná lokalita mimo hlavnej cesty
- veľký pozemok 1602 m²
- dobrá dostupnosť do centra
- pevná tehlová konštrukcia
- kompletné inžinierske siete
- vhodný na rekonštrukciu podľa vlastných predstáv

Tento rodinný dom predstavuje ideálnu príležitosť pre tých, ktorí hľadajú priestranné bývanie s potenciálom, v tichej časti mesta s kompletnou občianskou vybavenosťou a krásnym okolím

Vlastnosti

Status:
aktívne
Vlastníctvo:
spoluvlastníctvo
Plocha pozemku:
1602 m2
Typ zeme:
svahovitá
Teritórium:
Intravilán
Šírka pozemku:
20 m
Dĺžka pozemku:
84 m
Úžitková plocha:
198.95 m2
Zastavaná plocha:
106 m2
Podlahová plocha:
198.95 m2
Stav:
pôvodný stav
Energetický certifikát:
žiadne
Rok výstavby:
1977
Inžinierske siete:
áno
Voda:
áno
Elektrika:
áno
Plyn:
áno
Kanalizácia:
áno
Voda - na pozemku:
áno
Elektrika - na pozemku:
áno
Plyn - na pozemku:
áno
Kanalizácia - na pozemku - kanalizácia:
áno

Hypotekárna kalkulačka

180 000 €
Ulica: Šoltésová
Obec: Považská Bystrica
Okres: Považská Bystrica
Kraj: Trenčiansky kraj
Druh: Domy
Typ: Predaj
Typ domu: Rodinný dom

Ľubomír Pĺž

  • Slovensky
  • Česky

Radi Vám poradíme